FOR LEASE: 3,000 SF INDUSTRIAL CONDO UNIT
1027 Calle Trepadora #3
San Clemente, CA
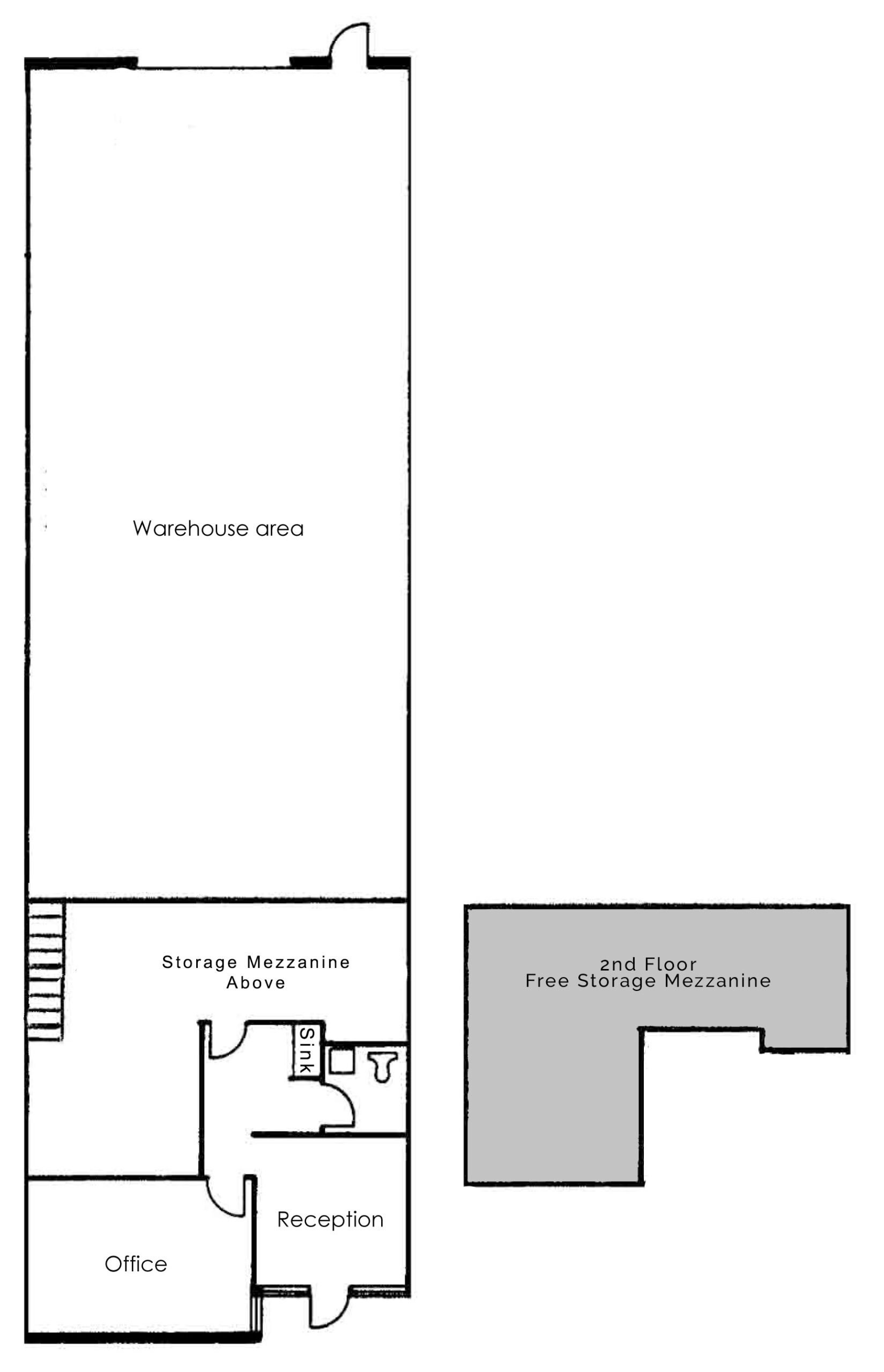
Total: 3,000 sf | Office: 625 sf | Warehouse: 2,375 sf
FOR LEASE - $2.10/SF GROSS
Contact Johnston Pacific
Highlights
- Total Unit SF: 3,000sf.
- 625 sf. Office
- 2,375 sf. Warehouse
- 442 sf. Mezzanine Area At No Extra Charge
- Reception and 1 Private Office
- 1 Ground Level Loading Doors
- 17’ Warehouse Clearance
- 200 Amps
- 7 Parking Stalls
Location
CONTACT US TODAY!






