FOR LEASE: 3,000 SF INDUSTRIAL CONDO UNIT

1027 Calle Trepadora #2
San Clemente, CA

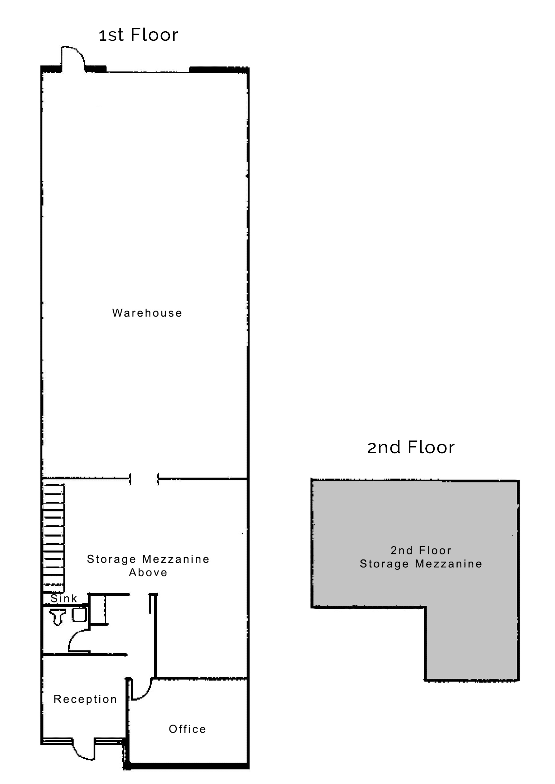
Total: 3,000 sf | Office: 400 sf | Warehouse: 2,600 sf

FOR LEASE - $2.10/SF GROSS

Highlights

  • Total Unit SF: 3,000sf.
  • 400 sf. Office
  • 2,600 sf. Warehouse
  • 500 sf. Mezzanine Area At No Extra Charge
  • Reception and 1 Private Office
  • 1 Ground Level Loading Doors
  • 17’ Warehouse Clearance
  • 200 Amps
  • 6 Parking Stalls

Location

Property Brochure

1027 Calle Trepadora #2
VIEW | DOWNLOAD BROCHURE

Floorplan

1027 Trepadora #2 Floorplan